Lou Pastoureu | L'Oustau rou | Lou Païre | Lou Bancau | Lou Pichoun


Cette maison est déjà en location.

Photos


Cliquez sur les images pour les agrandir

Caractéristiques



Cliquez sur le plan pour le visualiser

Plan sud - Maisons AVENIR TRADITION
Superficie du terrain1000 m²
Surface habitable98 m²
Surface terrasse18 m²
OrientationSud-Sud/Ouest
Nombre de pièces4 + cuisine
Nombre de chambres3
Particularitésagencement en L
EntréePorche couvert
Terrasseouverte
Garage18 m²
Gros-OeuvreMaçonnerie traditionnelle
Chauffageélectrique
Cheminéeconduit feu dans salon
Eau chaudeballon électrique 300 litres
LabelVivrélec
CloisonsPlacostil avec isolation phonique
FenêtresDouble vitrage PVC
Plancher du RdCSur vide sanitaire
Norme thermiqueRT 2000

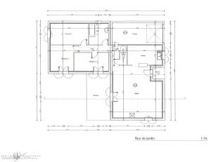
Plans et croquis


Cliquez sur le plan pour le visualiser
Plan du rez de jardin -
Maisons AVENIR TRADITION